Добро пожаловать на http://vipplan.ru

Випплан Геленджик - это тысячи проектов домов в нашем каталоге!

Вы всегда сможете найти для себя проект дома вашей мечты! Даже если этого не случилось, мы готовы в любую минуту предложить проект индивидуального дома.

Забыли пароль?
Вы еще не регистрировались?

Перейдите по ссылке ниже на страницу регистрации.

Регистрация...

Внимание!!!

В проектную документацию могут быть внесены изменения любой сложности, в соответствии в Вашими пожеланиями!

Полезные статьи

Сборные фундаменты

В наше время все большую популярность при строительстве дома приобретают сборные бетонные и железобетонные блоки. Их использование значительно сокращает время работ и снижает их трудоемкость....

Перекрытия в доме

Перекрытия – одно из важнейших составляющих строящегося дома. Это горизонтальная внутренняя защитная конструкция, разделяющая по уровню смежные помещения дома. По назначению выделяют подвальные, межэтажные и чердачные перекрытия. При проектировании домов и зданий различного назначения, требования к межэтажным перекрытиям определяются их местоположением и функциями разделяемых помещений: надподвальные, межэтажные, чердачные и т.д....

Проекты домов и коттеджей > Каталог проектов домов > Современный уютный коттедж с мансардным этажом Vg1342

Современный уютный коттедж с мансардным этажом Vg1342

Современный уютный коттедж с мансардным этажом
Зарегистрируйтесь

Проект № Vg1342


Техническое описание
Общая площадь: 141 м2
Жилая площадь: 71 м2
Высота здания: 9 м
Размеры дома: 10.16м×13.9м
Кол-во комнат: 5
Цокольный этаж: нет
Гараж: нет
Мансарда: есть

Kонструкция
Фундамент: Монолитная ж/б плита
Перекрытия: Монолитная ж/б плита
Материал стен: Газобетон

Архитектурный раздел
Конструктивный раздел
Инженерный раздел
Смета на строительство
АР+КР - 52 000 (Со скидкой 20%)
АР+КР+ИР - 101 350 (Со скидкой 50%)
Проект индивидуального однотажного жилого дома с мансардой с размерами здания 10,16 x 13,90 м. Наружная отделка здания – панели «Ханьи» Фундамент – монолитная ж/б плита (под всей площадью дома). Наружные стены – газобетонный блок, плиты базальтовые плотностью , влагозащитная паропроницаемая мембрана Изоспан А, горизонтальный профиль из оцинкованного металла , вертикальный профиль , панели "Ханьи" Внутренние стены - из газобетонных блоков. Перегородки – из газобетонных блоков. Пол первого этажа - монолитная ж/б плита.. Межэтажное перекрытие- монолитная ж/б плита. Крыша металлочерепица. Кровля – двускатая. Окна - металлопластиковые, выполненные по индивидуальному заказу.
Генплан застройки участка / Паспорт проекта 7000 руб / 10000 руб
Инженерный раздел (полный) 49350 руб (70500 руб)
Смета на строительство 26438 руб (35250 руб)
Теплотехнический расчет материалов стен Бесплатно
Стоимость проекта со незначительнми изменениями 61450 руб
Стоимость проекта со средними изменениями* 72100 руб
Стоимость проекта со значительными изменениями** 74900 руб

План первого этажа


Тамбур — 3,26 м2
Холл — 6,37 м2
Спальня — 11,96 м2
Бойлерная — 6,66 м2
Гостиная — 29,39 м2
Кухня — 11,43 м2
Гардероб — 1,40 м2
Кладовая — 2,13 м2
С/у — 1,69 м2

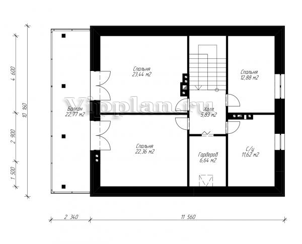
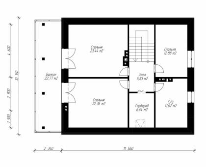
План мансардного этажа


Холл — 5,83 м2
Спальня — 23, 44 м2
Спальня — 12,88 м2
Спальня — 22,36 м2
С/у — 11,62 м2
Гардероб — 6,64 м2
Балкон — 22,77 м2
Современный уютный коттедж с мансардным этажом Современный уютный коттедж с мансардным этажом Современный уютный коттедж с мансардным этажом Современный уютный коттедж с мансардным этажом

Модификации проектов

Внесение изменений и привязка к участку строительства

В любой из проектов от компании VIPplan - Геленджик по вашему желанию могут быть внесены изменения в материалы стен, материалы наружной отделки дома, а также будет произведена адаптация проекта под конкретный регион строительства (с учетом грунтов региона, геологических особенностей вашего участка и местных климатических условий) - БЕСПЛАТНО !!! (кроме проектов со скидкой и проектов наших партнеров).

Любой из проектов, размещенных на сайте gelendjik.vipplan.ru мы можем выполнить из требуемых вам строительных материалов: ячеистый бетон (газобетон, пеноблок), керамоблок, кирпич, шлакоблок, бетонный блок, дерево (брус, клееный брус), каркасная технология (деревянный каркас, металлокаркас (ЛСТК)).

Фасад дома и его наружную отделку так же возможно выполнить с применением различных облицовочных материалов: структурной штукатурки, (с утеплителем и без), сайдингом (пластиковый или металлосайдинг), фиброплитами, кирпича.

 
6 Избранные
проекты

Доставка проектов по России: Москва (Московская область), Санкт-Петербург (Ленинградская область), Краснодар, Ростов-на-Дону, Ставрополь, Сочи, Волгоград, Новосибирск, Белгород, Брянск, Воронеж, Саратов, Хабаровск, Астрахань, Нальчик, Владикавказ, Екатеринбург, Тюмень, Самара, Нижний Новгород, Казань, Пермь, Уфа, Челябинск, Красноярск, Ханты-Мансийск, Иркутск, Курган, Оренбург, Омск, Томск, Барнаул, Новокузнецк, Кемерово, Абакан, Чита, Якутск, Южно-Сахалинск, Петропавловск-Камчатский и страны ближнего зарубежья: Белоруссия, Украина, Казахстан