Добро пожаловать на http://vipplan.ru

Випплан Геленджик - это тысячи проектов домов в нашем каталоге!

Вы всегда сможете найти для себя проект дома вашей мечты! Даже если этого не случилось, мы готовы в любую минуту предложить проект индивидуального дома.

Забыли пароль?
Вы еще не регистрировались?

Перейдите по ссылке ниже на страницу регистрации.

Регистрация...

Внимание!!!

В проектную документацию могут быть внесены изменения любой сложности, в соответствии в Вашими пожеланиями!

Полезные статьи

Купить готовый проект дома или заказать индивидуальный?

Перед началом строительства дома возникает необходимость в проекте дома и тут встает вопрос: Купить готовый проект дома или заказать индивидуальный на заказ? Каждый из вариантов по своему хорош и имеет как свои плюсы так и минусы...

Фундамент под гараж

Обычно фундаменты под гараж делаются из бетонного раствора и заливаются, как монолит. Гаражные фундаменты так же можно укладывать из бетона с применением бутового камня. Такие фундаменты тоже считаются монолитными. В этом случае происходит экономия бетона....

Проекты домов и коттеджей > Каталог проектов домов > Проект коттеджа из керамоблока Vg1049

Проект коттеджа из керамоблока Vg1049

Проект коттеджа из керамоблока
Зарегистрируйтесь

Проект № Vg1049


Техническое описание
Общая площадь: 162.67 м2
Жилая площадь: 100.13 м2
Высота здания: 9.75 м
Размеры дома: 9м×10.4м
Кол-во комнат: 5
Цокольный этаж: нет
Гараж: нет
Мансарда: есть

Kонструкция
Фундамент: Щелевой
Перекрытия: Ж/б плиты перекрытий
Материал стен: Керамоблок

Архитектурный раздел
Конструктивный раздел
АР+КР - 56 000 (Со скидкой 20%)
Проект индивидуального одноэтажного жилого дома с мансардой с размерами здания 9,00 x 10,40 м. Наружная отделка здания – облицовочный кирпич. Фундамент –стена в грунте («щелевой»). Наружные стены – из керамического блока с облицовочным кирпичом. Внутренние стены - из рядового кирпича. Перегородки – из керамического блока. Пол первого этажа - пол по грунту. Межэтажное перекрытие-ж/б плиты перекрытия. Крыша двускатная. Кровля – битумная черепица. Окна — металлопластиковые
Генплан застройки участка / Паспорт проекта 7000 руб / 10000 руб
Инженерный раздел (полный) 81500 руб
Смета на строительство 40750 руб
Теплотехнический расчет материалов стен Бесплатно
Стоимость проекта со незначительнми изменениями 65900 руб
Стоимость проекта со средними изменениями* 78200 руб
Стоимость проекта со значительными изменениями** 81400 руб

План первого этажа


Тамбур — 3,09 м2
Холл — 6,28 м2
С/у — 1,55 м2
Гостиная — 11,59 м2
Кухня — 11,41 м2
Гардероб — 1,42 м2
Кладовая — 2,07 м2
Спальня — 11,59 м2
Бойлерная — 6,52 м2

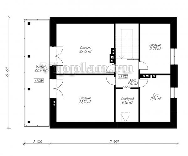
План мансардного этажа


Холл — 5,61 м2
Спальня — 23,75 м2
Спальня — 22,51 м2
Спальня — 12,79 м2
Гардероб — 6,40 м2
С/у — 11,54 м2
Проект коттеджа из керамоблока Проект коттеджа из керамоблока Проект коттеджа из керамоблока Проект коттеджа из керамоблока

Модификации проектов

Внесение изменений и привязка к участку строительства

В любой из проектов от компании VIPplan - Геленджик по вашему желанию могут быть внесены изменения в материалы стен, материалы наружной отделки дома, а также будет произведена адаптация проекта под конкретный регион строительства (с учетом грунтов региона, геологических особенностей вашего участка и местных климатических условий) - БЕСПЛАТНО !!! (кроме проектов со скидкой и проектов наших партнеров).

Любой из проектов, размещенных на сайте gelendjik.vipplan.ru мы можем выполнить из требуемых вам строительных материалов: ячеистый бетон (газобетон, пеноблок), керамоблок, кирпич, шлакоблок, бетонный блок, дерево (брус, клееный брус), каркасная технология (деревянный каркас, металлокаркас (ЛСТК)).

Фасад дома и его наружную отделку так же возможно выполнить с применением различных облицовочных материалов: структурной штукатурки, (с утеплителем и без), сайдингом (пластиковый или металлосайдинг), фиброплитами, кирпича.

 
6 Избранные
проекты

Доставка проектов по России: Москва (Московская область), Санкт-Петербург (Ленинградская область), Краснодар, Ростов-на-Дону, Ставрополь, Сочи, Волгоград, Новосибирск, Белгород, Брянск, Воронеж, Саратов, Хабаровск, Астрахань, Нальчик, Владикавказ, Екатеринбург, Тюмень, Самара, Нижний Новгород, Казань, Пермь, Уфа, Челябинск, Красноярск, Ханты-Мансийск, Иркутск, Курган, Оренбург, Омск, Томск, Барнаул, Новокузнецк, Кемерово, Абакан, Чита, Якутск, Южно-Сахалинск, Петропавловск-Камчатский и страны ближнего зарубежья: Белоруссия, Украина, Казахстан