Добро пожаловать на http://vipplan.ru

Випплан Геленджик - это тысячи проектов домов в нашем каталоге!

Вы всегда сможете найти для себя проект дома вашей мечты! Даже если этого не случилось, мы готовы в любую минуту предложить проект индивидуального дома.

Забыли пароль?
Вы еще не регистрировались?

Перейдите по ссылке ниже на страницу регистрации.

Регистрация...

Внимание!!!

В проектную документацию могут быть внесены изменения любой сложности, в соответствии в Вашими пожеланиями!

Полезные статьи

Применение свайных фундаментов

Сваи представляют собой длинные стержни, погруженные глубоко в грунт или изготовленные непосредственно в грунте. Покупные сваи с одной стороны имеют заостренный конец, который забивается в почву с помощью специальной техники. Установка свай, изготовленных своими руками, предполагают бурение скважин, армирование и заливку бетонного раствора. ...

Выбор проекта дома в Геленджике

Выбор проекта дома может завести семью в тупик. Прийти к одному конкретному мнению всем членам семьи очень сложно. Кому-то по душе, чтобы дом был большой и одноэтажный, с красивой террасой или верандой, кому-то хочется жить в двухэтажном доме с балконом. Детям, в основном, нравятся дома с мансардой....

Проекты домов и коттеджей > Каталог проектов домов > Проект одноэтажного дома с мансардой Vg1457

Проект одноэтажного дома с мансардой Vg1457

Проект одноэтажного дома с мансардой
Зарегистрируйтесь

Проект № Vg1457


Техническое описание
Общая площадь: 494.58 м2
Жилая площадь: 283.98 м2
Высота здания: 10.1 м
Размеры дома: 18.9м×28.8м
Кол-во комнат: 7
Цокольный этаж: нет
Гараж: нет
Мансарда: есть

Kонструкция
Фундамент: Монолитная плита
Перекрытия: Монолитная плита
Материал стен: Керамоблок

Архитектурный раздел
Конструктивный раздел
Инженерный раздел
Смета на строительство
АР+КР - 108 000 (Со скидкой 20%)
АР+КР+ИР - 281 250 (Со скидкой 50%)
Проект индивидуального одноэтажного жилого дома с мансардой с размерами здания 18,90 x 28,80 м. Наружная отделка здания – стеновые панели из пенополиуретана с фасадной штукатуркой и клинкерной плиткой. Фундамент – монолитная ж/б плита. Наружные стены – многопустотный керамический блок со стеновыми панелями из пенополиуретана с фасадной штукатуркой и клинкерной плиткой. Внутренние стены – забутовочный кирпич. Перегородки – забутовочный кирпич. Пол 1-го этажа – пол по фундаментной плите. Межэтажное перекрытие – монолитное ж/б. Перемычки: монолитные ж/б и из профиля проката. Крыша – многоскатная. Кровля – керамическая черепица. Окна – металлопластиковые. Лестница – монолитная ж/б.
Генплан застройки участка / Паспорт проекта 7000 руб / 10000 руб
Инженерный раздел (полный) 173250 руб (247500 руб)
Смета на строительство 92813 руб (123750 руб)
Теплотехнический расчет материалов стен Бесплатно
Стоимость проекта со незначительнми изменениями 122600 руб
Стоимость проекта со средними изменениями* 159800 руб
Стоимость проекта со значительными изменениями** 169700 руб

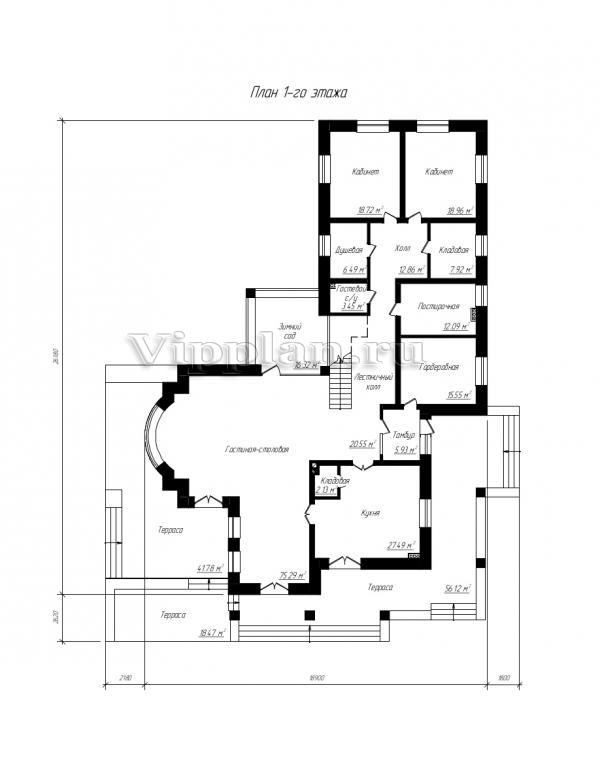
План первого этажа


Тамбур — 5,93 м2
Лестничный холл - 20,55 м2
Холл - 12,86 м2
Зимний сад - 16,32 м2
Гостевой с/у - 3,45 м2
Душевая - 6,49 м2
Кабинет - 18,72 м2
Кабинет - 18,96 м2
Кладовая - 7,92 м2
Постирочная - 12,09 м2
Гардеробная - 15,55 м2
Кухня - 27,49 м2
Кладовая - 2,13 м2
Гостиная - 75,29 м2

План мансардного этажа


Холл — 41,09 м2
С/у - 2,34 м2
Спальня - 21,35 м2
Гардероб - 5,65 м2
Гардероб - 6,02 м2
Спальня - 26,34 м2
С/у - 9,17 м2
Спальня - 24,48 м2
Гардероб - 5,65 м2
С/у - 12,80 м2
Кладовая - 3,84 м2
Спальня - 29,55 м2
Гардероб - 3,39 м2
Помещение 1 - 52,97 м2
Балкон — 2,66 м2
Проект одноэтажного дома с мансардой Проект одноэтажного дома с мансардой Проект одноэтажного дома с мансардой Проект одноэтажного дома с мансардой

Модификации проектов

Внесение изменений и привязка к участку строительства

В любой из проектов от компании VIPplan - Геленджик по вашему желанию могут быть внесены изменения в материалы стен, материалы наружной отделки дома, а также будет произведена адаптация проекта под конкретный регион строительства (с учетом грунтов региона, геологических особенностей вашего участка и местных климатических условий) - БЕСПЛАТНО !!! (кроме проектов со скидкой и проектов наших партнеров).

Любой из проектов, размещенных на сайте gelendjik.vipplan.ru мы можем выполнить из требуемых вам строительных материалов: ячеистый бетон (газобетон, пеноблок), керамоблок, кирпич, шлакоблок, бетонный блок, дерево (брус, клееный брус), каркасная технология (деревянный каркас, металлокаркас (ЛСТК)).

Фасад дома и его наружную отделку так же возможно выполнить с применением различных облицовочных материалов: структурной штукатурки, (с утеплителем и без), сайдингом (пластиковый или металлосайдинг), фиброплитами, кирпича.

 
6 Избранные
проекты

Доставка проектов по России: Москва (Московская область), Санкт-Петербург (Ленинградская область), Краснодар, Ростов-на-Дону, Ставрополь, Сочи, Волгоград, Новосибирск, Белгород, Брянск, Воронеж, Саратов, Хабаровск, Астрахань, Нальчик, Владикавказ, Екатеринбург, Тюмень, Самара, Нижний Новгород, Казань, Пермь, Уфа, Челябинск, Красноярск, Ханты-Мансийск, Иркутск, Курган, Оренбург, Омск, Томск, Барнаул, Новокузнецк, Кемерово, Абакан, Чита, Якутск, Южно-Сахалинск, Петропавловск-Камчатский и страны ближнего зарубежья: Белоруссия, Украина, Казахстан